3D Laserscan Stadtbad Mitte, Berlin
Get in touch
About this project
About the project
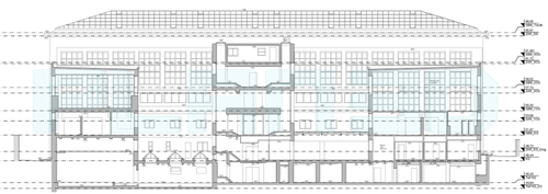
Get in touchIm Jahr 2022 war Plan 3D wir im Rahmen der Sanierungsplanung des Stadtbads Mitte „James Simon“ in Berlin mit der Bestandserfassung und Modellierung des Gebäudes beauftragt. Auf Grundlage von 3D-Laserscanning und Tachymetrie wurde ein BIM-fähiges 3D-Gebäudemodell sowie verformungsgerechte 2D-Bestandspläne in Form von Grundrissen, Ansichten und Schnitten erstellt. Das Projekt mit einer Bruttogrundfläche von rund 7.100 m² wurde für die Berliner Bäderbetriebe umgesetzt.
2022
finishing
35.000 €
Order volume
Service areas involved
Vermessung


No items found.
More references
This is some text inside of a div block.
This is some text inside of a div block.
Heading
This is some text inside of a div block.
This is some text inside of a div block.

This is some text inside of a div block.
This is some text inside of a div block.
Heading
This is some text inside of a div block.
This is some text inside of a div block.

%201.webp)
.jpg)








-p-500.png)














.jpg)






















