Vermessung Bauhaus Dessau
Kontakt aufnehmen
Über dieses Projekt
Über das Projekt
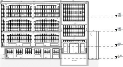
Kontakt aufnehmenIm Jahr 2024 führte Plan 3D für den Auftraggeber Wüstenrot Stiftung eine umfassende 3D-Laserscan-Vermessung des Werkstattflügels des Bauhaus Dessau durch, einem der bedeutendsten Architekturdenkmäler der Moderne in Deutschland. Auf Basis der präzisen Punktwolken wurden hochauflösende Orthobilder, detaillierte 2D-Bestandspläne im Maßstab 1:50 sowie ein digitales 3D-Modell im IFC-Format erstellt. Die Ergebnisse liefern eine verlässliche Grundlage für den Denkmalschutz und bilden eine zentrale Basis für künftige Planungs- und Sanierungsmaßnahmen. Der Auftrag erfolgte im Rahmen eines Projekts der Wüstenrot Stiftung mit einem Auftragsvolumen von rund 35.000 € netto.
2024
Fertigstellung
35.000 €
Auftragsvolumen
Beteiligte Leistungsbereiche
Vermessung

No items found.
Weitere Referenzen
This is some text inside of a div block.
This is some text inside of a div block.
Heading
This is some text inside of a div block.
This is some text inside of a div block.

This is some text inside of a div block.
This is some text inside of a div block.
Heading
This is some text inside of a div block.
This is some text inside of a div block.

%201.webp)
.jpg)








-p-500.png)














.jpg)






















