
Über dieses Projekt
Adresse
Chausseestraße , 15518 Langewahl, Deutschland
Nutzung
Kaufen
Objektart
Grundstück
Kaltmiete
€
Warmmiete
€
Preis/m2
€
Kaufpreis
€
Art der Immobilie
Fläche
m2
Grundstücksfläche
681
m2
Bebaubar nach
Bebauungsplan
Erschließung
Erschlossen
Baujahr
Bezugstyp
Schlafzimmer
Badezimmer
Garagen
0
Ausstattung
No items found.
Beschreibung
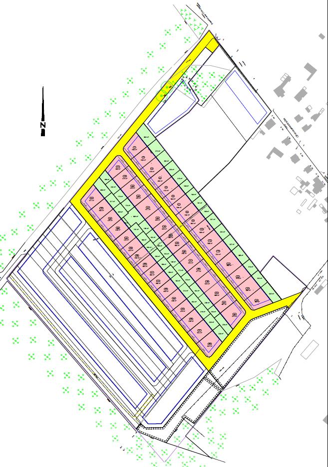
Das Mustergrundstück Nr. 35 liegt im ersten Bauabschnitt.
Hier entsteht ein familiäres Wohngebiet in grüner, waldreicher Umgebung.
Das Baufeld weist Gründstücke zwischen ca. 550 m² bis ca. 1000 m². Der Preis pro Quadratmeter liegt bei rund 170 Euro.
Mit einer Grundflächenzahl von 0,3, der maximal zweigeschossigen offenen Bauweise und einer freien Bauträgerwahl verfügen Sie über eine sehr hohe Flexibilität für Ihren Hausbau.
Die Grundstücke sind straßenseitig voll erschlossen.
Lage
Die Gemeinde Langewahl - gelegen an den Dubrower Bergen und eingebettet in eine schöne Waldlandschaft - ist eine der fünf amtsangehörigen Gemeinden im Amt Scharmützelsee.
Langewahl ist ein herrlich gelegener Ort, umgeben von Wäldern, Wiesen und der Spree, als Gewässer.
Sonstiges
Sie benötigen Hilfe bei der Finazierung?
Wir stellen Ihnen gern unseren zuverlässigen Finanzierungspartner zur Verfügung!
Bei der Fläche handelt es sich um ein Baugebiet, in dem verschiedene Grundstücksgrößen verfügbar sind. Suchen Sie sich Ihr passendes Grundstück aus. Rufen Sie uns für eine individuelle Beratung an!
Sier erhalten von uns folgene Vorteile:
- PROVISIONSFREI
- Bauträgerfrei
- Keine Bauverpflichtung
- voll erlossene Grundstücke
- Bebauung gemäß Bebauungsplan
- Kauf direkt vom Eigentümer
Download PDF
Eindrücke
No items found.
%201.webp)







